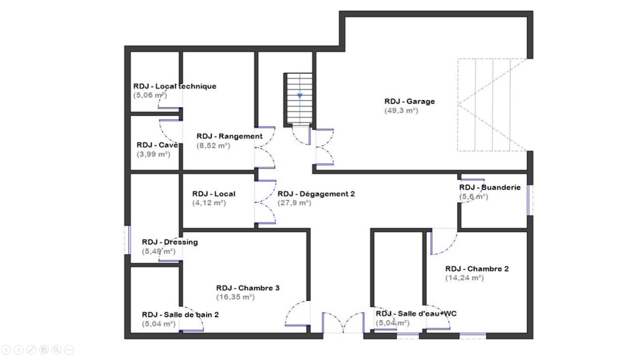
RARE ! Superbe villa avec vue panoramique située à Creuzier-le-Vieux, sur les hauteurs de Vichy, à seulement 5 minutes en voiture du cœur de ville. Environnement privilégié, en bordure d'une "zone verte". Construite en 1993 par la SCABB, cette maison se distingue par son état irréprochable, ses volumes généreux et sa luminosité exceptionnelle grâce à de nombreuses baies vitrées et une exposition sud-ouest. Elle développe 222m² habitables pour une surface bâtie totale de 293m² et est implantée sur un parc clos et arboré de 3 000m² avec piscine 5 x 10 (liner récent). L’entrée ouvre sur un vaste salon séjour de près de 65m² avec cheminée, largement ouvert par baies vitrées sur une grande terrasse offrant un accès direct au jardin et à la piscine, la cuisine dinatoire de 21,60m² dispose également d’un accès terrasse, suite parentale composée d’une chambre de 21,60 m², d’une salle de bains et de WC séparés, un bureau ainsi qu’un WC invité dans l'entrée. Au rez-de-jardin se trouvent deux autres suites, la première avec une chambre de 16,35 m², salle de bains privative et WC, la seconde avec une chambre de 14,25 m², salle d’eau et WC, ainsi qu’un vaste dégagement permettant un accès direct à la piscine, lingerie. En annexes, non comptabilisées dans la surface habitable, la propriété dispose d’un garage de 50 m² avec porte automatisée, d’un local technique piscine, de deux pièces de rangement et d’une cave. Le terrain est entièrement clos et équipé d’un portail automatisé, volets roulants motorisés, alarme. Un bien rare sur le secteur, sans travaux, alliant calme, vue panoramique et proximité immédiate de Vichy. Chauffage électrique, DPE réalisé le 27/01/2026, C (163), estimation des coûts annuels d’énergie comprise entre 3300€ et 4530€ pour un usage standard, prix moyens des énergies indexés sur les années 2021, 2022 et 2023 (abonnements compris) / GES: B (6). La maison est équipée de panneaux photovoltaïques produisant environ 2000€ d'électricité par an, revendus au fournisseur d'énergie. 660 000€ HAI – 630 000€ net vendeur soit 4.77% TTC d’honoraires charges acquéreurs. Les informations sur les risques auxquels ce bien est exposé sont disponibles sur le site Géorisques : www.georisques.gouv.fr
MAISONS : SUPERBE VILLA, VUE PANORAMIQUE, 5MN COEUR DE VILLE VICHY (CREUZIER LE VIEUX - 03300)
Données
Financières
Estimation
Dépenses Annuelles Energie
Données
énergétiques
Logement extrêmement performant
163 kWh/m2/an
Logement extrêmement peu performant
émission de CO2, peu importantes
6 kWh/m2/an
émission de CO2, très importantes
NOS
COORDONNEES
04 70 96 13 58
deschampsimmobilier@yahoo.fr
2 rue du Président Wilson
03200 VICHY
























