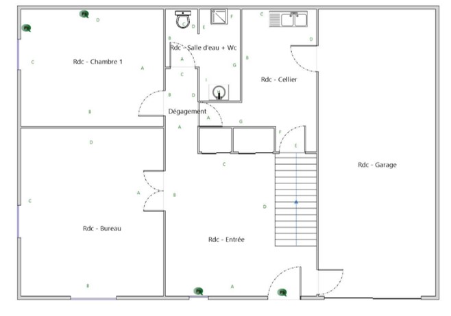
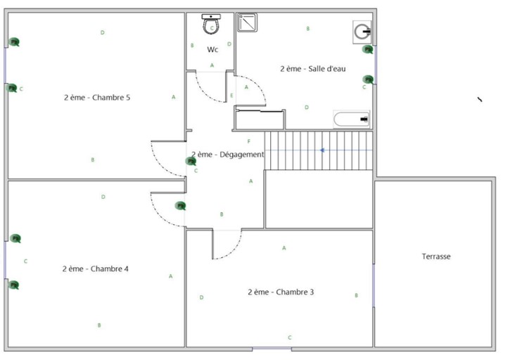
Maison de caractère idéalement située face aux parcs quartier de France à Vichy. 197m² habitables, sous sol, 2 terrasses, grand garage. Au rez-de-chaussée: vaste entrée de 15m², 2 chambres (une exploitée en tant que bureau actuellement) de 20m² et 14m², petite salle d’eau avec WC, cellier/buanderie, garage. Au 1er étage: beau séjour d’angle de 37m² avec cheminée centrale, cuisine ouverte sur une terrasse, une chambre, salle de bains, dressing, WC. AU 2nd: 3 chambres dont une avec terrasse (10m², 14.50m², 16m²), salle de bains avec baignoire et douche, WC. Garage 2 véhicules en enfilade. Sous-sol. Chauffage gaz, logement à consommation énergétique excessive, DPE réalisé le 29/07/2025, F (335) / GES: D (46), estimation des coûts annuels d’énergie comprise entre 5320€ et 7260€ pour un usage standard, prix moyens des énergies indexés sur les années 2021, 2022 et 2023 (abonnements compris). 385 000€ HAI – 370 000€ net vendeur soit 4.05% TTC d’honoraires charges acquéreurs. Les informations sur les risques auxquels ce bien est exposé sont disponibles sur le site www.georisques.gouv.fr
MAISONS : MAISON VICHY FACE AUX PARCS (VICHY - 03200)
Données
Financières
Estimation
Dépenses Annuelles Energie
Données
énergétiques
Logement extrêmement performant
335 kWh/m2/an
Logement extrêmement peu performant
émission de CO2, peu importantes
46 kWh/m2/an
émission de CO2, très importantes
NOS
COORDONNEES
04 70 96 13 58
deschampsimmobilier@yahoo.fr
2 rue du Président Wilson
03200 VICHY


















